Студия дизайна интерьера "LYAMINA"
Проектирование. Подбор отделки и мебели. Реализация.
ДИЗАЙН ИНТЕРЬЕРА В ЕКАТЕРИНБУРГЕ И РФ .
Лучшее предложение в дизайне интерьера в соотношении цена/качество

Площадь до 100м2
В проект входит :
1.Консультация дизайнера
2.Обмерный план
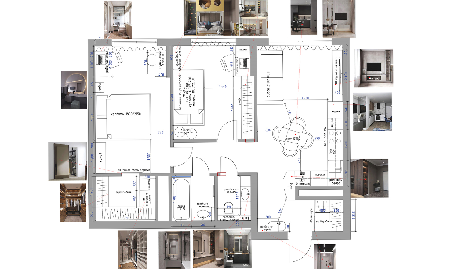
3.Планировка с расстановкой мебели с размерами и примерами в картинках
4.Рекомендации по подбору отделки и мебели
***Отличное решение при покупке новой квартиры, а также для коттеджа в процессе проектирования, чтобы заранее предусмотреть удобную и красивую планировку.
Стоимость указана за площадь до 100м2!! (+10тр. за каждые доп.50м2)
**Возможно создание дизайн-проекта удаленно, для других городов. Для заказа Вам нужно будет предоставить план с замерами помещений, фото и видеосъемку квартиры/коттеджа
В проект входит :
1.Консультация дизайнера
2. Частичный комплект чертежей (обмерный план, расстановка мебели, план электрики: светильники, розетки, выключатели)
3. 3D-визуализации по каждой комнате
(проект в формате PDF)
4.Рекомендации по подбору отделки и мебели
***Минимальный состав проекта, включающий в себя только самую необходимую информацию для выполнения ремонта.
**Возможно создание дизайн-проекта удаленно, для других городов. Для заказа Вам нужно будет предоставить план с замерами помещений, фото и видеосъемку квартиры/коттеджа
В проект входит :
1.Консультация дизайнера с выездом на объект.
2.Полный комплект чертежей,
(Обмерный план,
расстановка мебели,
план полов и потолков,
планы электрики и сантехники
с подробным указанием всех размеров,
материалов, развертки по стенам и пр.)
3. Фотореалистичные 3D-визуализации по каждой комнате
(проект PDF + 1распечатанный экз. А3)
4.Ведомость отделочных материалов и мебели
(список позиций и магазинов/ссылки)
5.Выезд с дизайнером в магазины для подбора и отделочных материалов и мебели
***Полный дизайн-проект с подробными чертежами, подсчетом бюджета, списком отделки. Все, что Вам нужно для реализации качественного дизайнерского ремонта.



























